Skip to main content

2 rum och kök - våning 1

Centralgatan 2C - Mariannelund

    6 800 kr • 70 m2

    2 rum och kök

    Beskrivning

    Tvårumslägenhet i charmiga Mariannelund – ljus, karaktär och bevarade kakelugnar

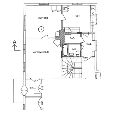
    Välkommen till en hemtrevlig tvårumslägenhet med kök, belägen i Mariannelund – mellan Vimmerby och Eksjö. Lägenheten ligger på första våningen (en trappa upp från entréplanet) i ett mindre hyreshus utan hiss. Den har fönster i två väderstreck som släpper in ett härligt ljus, och bevarade originaldetaljer såsom vackra trägolv, stora fönster och två kakelugnar som skapar karaktär och trivsel.

    När du kliver in möts du av en hall med badrummet direkt till vänster – helkaklat och utrustat med dusch samt en kombinerad tvättmaskin/torktumlare. Köket ligger rakt fram och har fönster mot innergården samt gott om ljus. Här finns spis, kyl/frys och diskmaskin. Golvet är ljust och lättstädat, medan angränsande rum har trägolv.

    Sovrummet har vackert trägolv och ljusinsläpp från två håll. I ena hörnet står en av kakelugnarna – en vacker inredningsdetalj som ger rummet extra charm. Från sovrummet når du det stora vardagsrummet med stora fönster, trägolv och ännu en kakelugn som bidrar till rummets inbjudande atmosfär.

    Hyresgästerna har tillgång till en gemensam trädgård på tomten, inramad av en traditionell gärdsgård – en grön oas mitt i byn.

    Läget är mycket centralt, med ICA-butik och busshållplats ett stenkast bort. Samtidigt bor du nära naturen, med skog, sjöar och friluftsliv inom räckhåll. Vimmerby och Eksjö ligger inom bekvämt avstånd med bil eller buss.

    Fakta

    • Första våningen (en trappa upp, ingen hiss)
    • Nyrenoverat badrum med tvättmaskin/torktumlare och golvvärme
    • Två bevarade kakelugnar
    • Fiber finns indraget
    • Förråd i källaren
    • Gratis parkering
    • Tillträde: Ledigt nu

    Detta ingår i hyran

    • Uppvärmning
    • Vatten
    • Sophämtning

    Du står själv för hushållsel. Internet via fiber finns tillgängligt, men abonnemang är valfritt.

    Intresserad?

    Är du intresserad? Skicka gärna ett meddelande och berätta lite om dig själv – var du bor idag, vad du jobbar med och vad du söker i ett boende. Du behöver ha en stabil inkomst.