Skip to main content

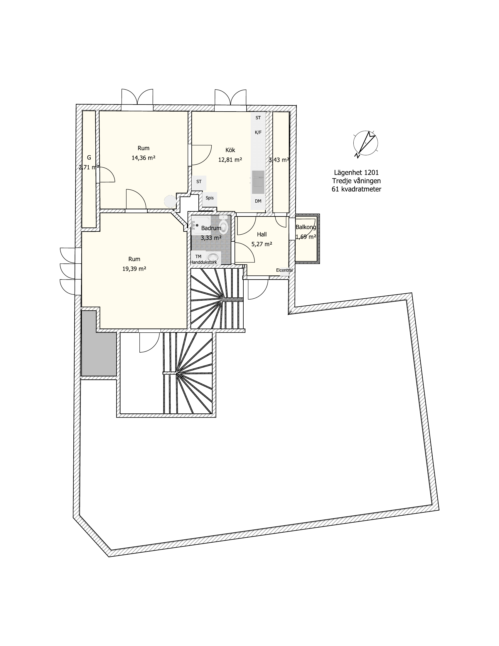
2 rum och kök - våning 2

Centralgatan 2C - Mariannelund

6 000 kr • 61 m2

2 rum och kök

Beskrivning

Tvårumslägenhet med kakelugn och nyrenoverat badrum – centralt i Mariannelund

Välkommen till en ljus och hemtrevlig tvårumslägenhet med kök, belägen i Mariannelund – mellan Vimmerby och Eksjö. Lägenheten ligger på andra våningen (två trappor upp från entréplanet) i ett mindre hyreshus utan hiss. Här bor du med fönster i två väderstreck, vackra trägolv och bevarade originaldetaljer såsom kakelugn i vardagsrummet.

Köket är utrustat med kyl/frys, spis och diskmaskin. Skåpen är målade i ljus kulör med trälister och har gott om förvaringsutrymme. Det finns plats för matbord vid fönstret, och golvet är ljust och lättstädat.

Badrummet är nyligen renoverat med helkaklade väggar i vitt och mörkt klinkergolv. Här finns dusch, WC, handfat med kommod och en kombinerad tvättmaskin/torktumlare.

Vardagsrummet har ett vackert brädgolv, stora fönster och en bevarad vit kakelugn som ger både karaktär och mysfaktor. Rummet är rymligt och kan möbleras efter behov.

Hyresgästerna har tillgång till en gemensam trädgård som ramas in av gärdsgård – en grön och lugn plats mitt i byn.

Läget är mycket centralt, med ICA-butik och busshållplats ett stenkast bort. Samtidigt bor du nära naturen med skogar, sjöar och goda möjligheter till friluftsliv. Vimmerby och Eksjö ligger inom bekvämt pendlingsavstånd.

Fakta

  • Andra våningen (två trappor upp, ingen hiss)
  • Kakelugn i vardagsrum
  • Nyrenoverat badrum med tvättmaskin/torktumlare och golvvärme
  • Fönster i två väderstreck
  • Fiber finns indraget
  • Förråd i källaren
  • Gratis parkering
  • Tillträde: Ledigt nu

Detta ingår i hyran

  • Uppvärmning
  • Vatten
  • Sophämtning

Du står själv för hushållsel. Internet via fiber finns tillgängligt, men abonnemang är valfritt.

Intresserad?

Är du intresserad? Skicka gärna ett meddelande och berätta lite om dig själv – var du bor idag, vad du jobbar med och vad du söker i ett boende. Du behöver ha en stabil inkomst.