Skip to main content

Tvåa med stor balkong i söderläge, öppen planlösning och golvvärme

Vibyvägen 8 - Rimbo

7 201 kr • 35 m2

2 rum och kök

Beskrivning

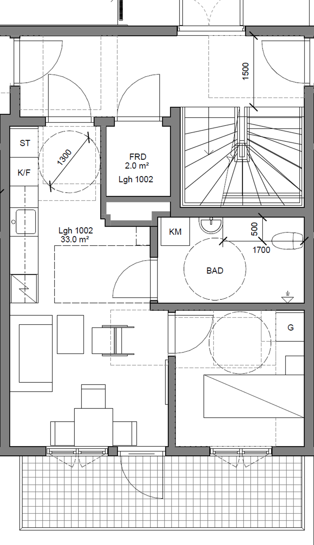
Välkommen till en ljus och modern enrummare på 35 kvm, belägen på entréplan i ett flerfamiljshus med sex lägenheter. Lägenheten har öppen planlösning, stor balkong i söderläge och egen tvättutrustning. Här bor du bekvämt med god förvaring, fönster mot parken och golvvärme i hela bostaden.

När du kommer in möts du av hallen med förvaring direkt till vänster. På din högra sida ligger köket, som smidigt övergår i vardagsrumsdelen – en öppen planlösning som ger ett rymligt och luftigt intryck. Köket är utrustat med diskmaskin, kyl/frys och ugn. Från vardagsrummet kliver du ut på lägenhetens generösa balkong i söderläge – perfekt för soliga dagar och varma kvällar.

Badrummet är helkaklat med dusch och utrustat med egen kombinerad tvättmaskin/torktumlare.

Lägenheten har behaglig golvvärme i hela bostaden, vilket gör den enkel att möblera.

Ditt förråd finns i direkt anslutning till lägenheten. Utanför huset finns parkeringsplatser, och hyresgästerna har tillgång till en gemensam uteplats med möbler. Huset ligger på en höjd med utsikt över grönområde och lekplats.

I närområdet finns både förskolor och skolor på promenadavstånd. Rimbo centrum har allt du behöver i vardagen – badhus, mataffärer, systembolag, bankomat, apotek och mer.

Fakta

  • Entréplan
  • 1 rum och kök, 35 kvm
  • Väl tilltagen balkong i söderläge
  • Öppen planlösning
  • Golvvärme i hela lägenheten
  • Helkaklat badrum med dusch
  • Tvättmaskin och torktumlare
  • Fiber finns indraget
  • Förråd i direkt anslutning till lägenheten
  • Flerfamiljshus med 6 lägenheter
  • Tillträde: Slutet av 2025

Detta ingår i hyran

  • Uppvärmning

Du betalar själv för hushållsel och vattenförbrukning. Internetabonnemang tecknas separat via valfri leverantör.

Parkeringsplats finns att hyra för 250 kr/månad.

Övrigt

  • Husdjur är tillåtna
  • Rökning är inte tillåtet – varken inomhus eller på balkongen

Välkommen med din intresseanmälan

Skicka ett meddelande och berätta lite om dig själv – var du bor idag, vad du jobbar med och vad du söker i ett boende. Du behöver ha en stabil inkomst.