Skip to main content

Tvårumslägenhet med öppen planlösning, balkong i söderläge och utsikt åt tre väderstreck

Vibyvägen 8 - Rimbo

11 267 kr • 67 m2

2 rum och kök

Beskrivning

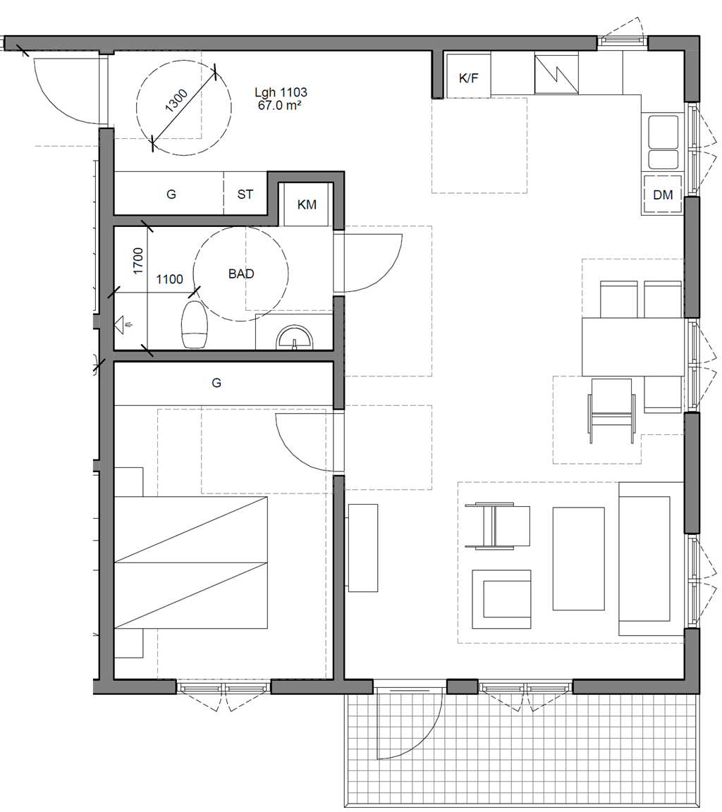
Välkommen till en ljus och rymlig tvårumslägenhet på 67 kvm, belägen på våning 1 (en trappa upp från entréplan) i ett flerfamiljshus med sex lägenheter. Lägenheten har öppen planlösning mellan kök och vardagsrum, stor balkong i söderläge, fönster i tre väderstreck och egen tvättutrustning. Här bor du med fri utsikt över både skogen på baksidan och parken på framsidan.

När du kommer in möts du av en hall med rymlig förvaring direkt till höger. Rakt fram ligger köket i vinkel, som övergår i ett ljust vardagsrum med utgång till balkongen – en härlig plats att njuta av solen under många fina dagar och kvällar.

Sovrummet är lugnt beläget och rymmer en dubbelsäng samt förvaring för kläder. Badrummet är helkaklat med dusch och utrustat med egen kombinerad tvättmaskin/torktumlare.

Lägenheten har golvvärme i hela bostaden, vilket skapar en trivsam inomhusmiljö och gör det enkelt att möblera utan att ta hänsyn till element.

Ett förråd finns i källaren. Utanför huset finns parkeringsplatser, och hyresgästerna har tillgång till en gemensam uteplats med möbler. Huset ligger på en höjd med vacker utsikt åt flera håll.

I närområdet finns både förskolor och skolor på promenadavstånd. Rimbo centrum erbjuder all tänkbar service – badhus, mataffärer, systembolag, bankomat, apotek och mycket mer.

Fakta

  • Våning 1 (en trappa upp från entréplan)
  • 2 rum och kök, 67 kvm
  • Balkong i söderläge
  • Fönster i tre väderstreck
  • Utsikt mot skog och park
  • Öppen planlösning mellan kök och vardagsrum
  • Golvvärme i hela lägenheten
  • Helkaklat badrum med dusch
  • Tvättmaskin och torktumlare
  • Fiber finns indraget
  • Förråd i källaren
  • Flerfamiljshus med 6 lägenheter
  • Tillträde: I slutet av 2025

Detta ingår i hyran

  • Uppvärmning

Du betalar själv för hushållsel och vattenförbrukning. Internetabonnemang tecknas separat via valfri leverantör.

Parkeringsplats finns att hyra för 250 kr/månad.

Övrigt

  • Husdjur är tillåtna
  • Rökning är inte tillåtet – varken inomhus eller på balkongen

Välkommen med din intresseanmälan

Skicka ett meddelande och berätta lite om dig själv – var du bor idag, vad du jobbar med och vad du söker i ett boende. Du behöver ha en stabil inkomst.